82 Eugene Avenue Whitehorse, Yukon Y1A 0S9
$639,900
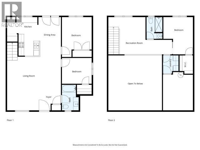
Welcome to 82 EUGENE AVENUE, a 1.5 storey home located in the heart of Whistle Bend--offering a beautiful blend of modern efficiency and unique layout. This 3-bdrm, 2-bath home offers over 1,700 sf of living space and features an innovative build using ICE Panels, an advanced and energy-efficient construction method that eliminates thermal bridging resulting in lower energy bills and year-round comfort. Step inside to discover an open-concept main floor with soaring wood ceilings, a spacious living room, stylish kitchen, and generous dining area. The main level also includes two bedrooms and a full bathroom. Upstairs, you'll find a loft-style flex space, a third bedroom, a 3-piece bath, and a laundry area with added storage--all designed to maximize function and flow. Enjoy incredible views and excellent sun exposure from the spacious deck that leads to a fully fenced back yard with a thoughtfully designed gate system to allow easy access to the back yard. Quick possession available. (id:34699)
Property Details
| MLS® Number | 16876 |
| Property Type | Single Family |
| Features | Rectangular |
| Structure | Deck |
Building
| Bathroom Total | 2 |
| Bedrooms Total | 3 |
| Appliances | Stove, Refrigerator, Washer, Dishwasher, Dryer |
| Constructed Date | 2022 |
| Construction Style Attachment | Detached |
| Size Interior | 1,736 Ft2 |
| Type | House |
Land
| Acreage | No |
| Fence Type | Fence |
| Size Irregular | 4871 |
| Size Total | 4871 Sqft |
| Size Total Text | 4871 Sqft |
Rooms
| Level | Type | Length | Width | Dimensions |
|---|---|---|---|---|
| Above | Primary Bedroom | 11 ft ,7 in | 12 ft | 11 ft ,7 in x 12 ft |
| Above | 3pc Bathroom | Measurements not available | ||
| Above | Family Room | 8 ft ,9 in | 14 ft | 8 ft ,9 in x 14 ft |
| Main Level | Living Room | 19 ft ,2 in | 18 ft ,3 in | 19 ft ,2 in x 18 ft ,3 in |
| Main Level | Kitchen | 14 ft ,3 in | 14 ft ,7 in | 14 ft ,3 in x 14 ft ,7 in |
| Main Level | 4pc Bathroom | Measurements not available | ||
| Main Level | Bedroom | 11 ft ,7 in | 12 ft | 11 ft ,7 in x 12 ft |
| Main Level | Bedroom | 10 ft ,4 in | 12 ft | 10 ft ,4 in x 12 ft |
https://www.realtor.ca/real-estate/28982133/82-eugene-avenue-whitehorse

(867) 667-7239
400-4201 4th Ave
Whitehorse, Yukon Y1A 5A1
(867) 667-2514
(867) 667-7132
remaxyukon.com/

(867) 332-8892
400-4201 4th Ave
Whitehorse, Yukon Y1A 5A1
(867) 667-2514
(867) 667-7132
remaxyukon.com/
Contact Us
Contact us for more information






























































