21 Iron Horse Drive Whitehorse, Yukon Y1A 6T4
$825,000
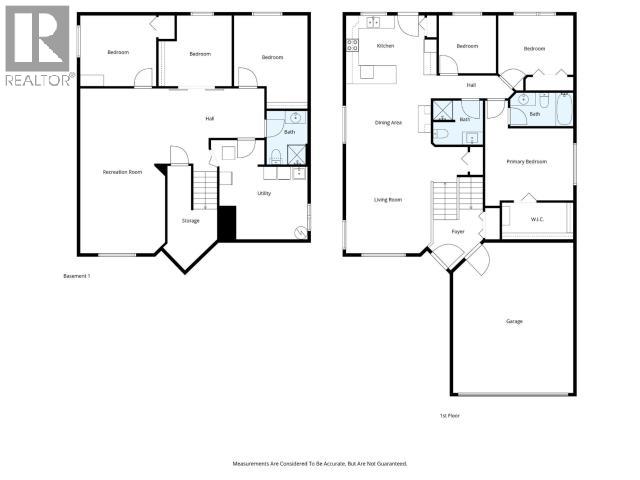
Welcome to 21 Iron Horse Drive, perfectly positioned in sought-after Copper Ridge. With a southwest-facing backyard and deck, this property offers sunshine, privacy, and ideal outdoor living year-round. Inside, the spacious layout features 6 bedrooms, 3 bathrooms and a large second living room--perfect for kids, guests, or multi-generational living. The open-concept kitchen, dining, and living area creates an inviting central hub, complemented by a generous front entrance and updated lighting. The home features hardwood flooring, carpet, lino, and window treatments. A large laundry room with ample storage adds to the convenience. Outside, enjoy a fully fenced backyard, lawns in both front and back, and a double paved driveway leading to a double garage. Practical upgraded 220-AMP ELECTRICAL SERVICE is future-ready for a hot tub, EV charger and more. Nestled in a great neighbourhood, this is a fantastic home for your family to begin 2026 in. (id:34699)
Property Details
| MLS® Number | 17004 |
| Property Type | Single Family |
| Community Features | School Bus |
| Features | Rectangular |
| Structure | Deck |
Building
| Bathroom Total | 3 |
| Bedrooms Total | 6 |
| Appliances | Stove, Refrigerator, Washer, Dryer, Microwave |
| Constructed Date | 2004 |
| Construction Style Attachment | Detached |
| Fireplace Fuel | Electric |
| Fireplace Present | Yes |
| Fireplace Type | Conventional |
| Fixture | Drapes/window Coverings |
| Size Interior | 2,600 Ft2 |
| Type | House |
Land
| Acreage | No |
| Fence Type | Fence |
| Landscape Features | Lawn |
| Size Irregular | 6325 |
| Size Total | 6325 Sqft |
| Size Total Text | 6325 Sqft |
Rooms
| Level | Type | Length | Width | Dimensions |
|---|---|---|---|---|
| Basement | 3pc Bathroom | Measurements not available | ||
| Basement | Bedroom | 11 ft ,3 in | 10 ft ,11 in | 11 ft ,3 in x 10 ft ,11 in |
| Basement | Bedroom | 11 ft ,8 in | 14 ft ,8 in | 11 ft ,8 in x 14 ft ,8 in |
| Basement | Family Room | 13 ft ,2 in | 26 ft ,6 in | 13 ft ,2 in x 26 ft ,6 in |
| Basement | Bedroom | 11 ft ,9 in | 10 ft ,11 in | 11 ft ,9 in x 10 ft ,11 in |
| Basement | Laundry Room | 6 ft ,4 in | 8 ft ,4 in | 6 ft ,4 in x 8 ft ,4 in |
| Main Level | Living Room | 13 ft ,2 in | 17 ft | 13 ft ,2 in x 17 ft |
| Main Level | Dining Room | 13 ft ,9 in | 12 ft | 13 ft ,9 in x 12 ft |
| Main Level | Kitchen | 14 ft ,10 in | 12 ft ,9 in | 14 ft ,10 in x 12 ft ,9 in |
| Main Level | Primary Bedroom | 13 ft ,8 in | 16 ft ,3 in | 13 ft ,8 in x 16 ft ,3 in |
| Main Level | 3pc Bathroom | Measurements not available | ||
| Main Level | 4pc Ensuite Bath | Measurements not available | ||
| Main Level | Bedroom | 11 ft ,7 in | 11 ft ,7 in | 11 ft ,7 in x 11 ft ,7 in |
| Main Level | Bedroom | 8 ft ,10 in | 8 ft ,11 in | 8 ft ,10 in x 8 ft ,11 in |
https://www.realtor.ca/real-estate/29167226/21-iron-horse-drive-whitehorse

(867) 667-7239
400-4201 4th Ave
Whitehorse, Yukon Y1A 5A1
(867) 667-2514
(867) 667-7132
remaxyukon.com/

(867) 332-8892
400-4201 4th Ave
Whitehorse, Yukon Y1A 5A1
(867) 667-2514
(867) 667-7132
remaxyukon.com/
Contact Us
Contact us for more information








































































