16 Deadend Road Whitehorse South, Yukon Y0B 1T0
3 Bedroom 2 Bathroom
$689,000
Rare opportunity to own a lakefront home on Tagish lake. This 3 bedroom , 2 bathroom home on large has all the amenities for year round living or a large recreational property. Detached garage, large deck, and lots of space to park. (id:34699)
Property Details
| MLS® Number | 16867 |
| Property Type | Single Family |
Building
| Bathroom Total | 2 |
| Bedrooms Total | 3 |
| Construction Style Attachment | Detached |
| Type | House |
Land
| Acreage | No |
| Size Irregular | 0.59 |
| Size Total | 0.59 Ac |
| Size Total Text | 0.59 Ac |
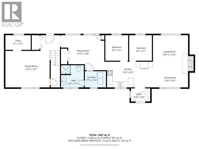
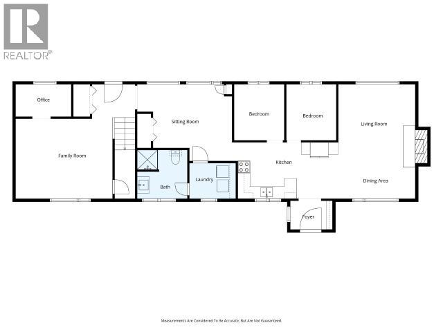
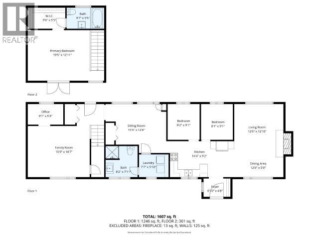
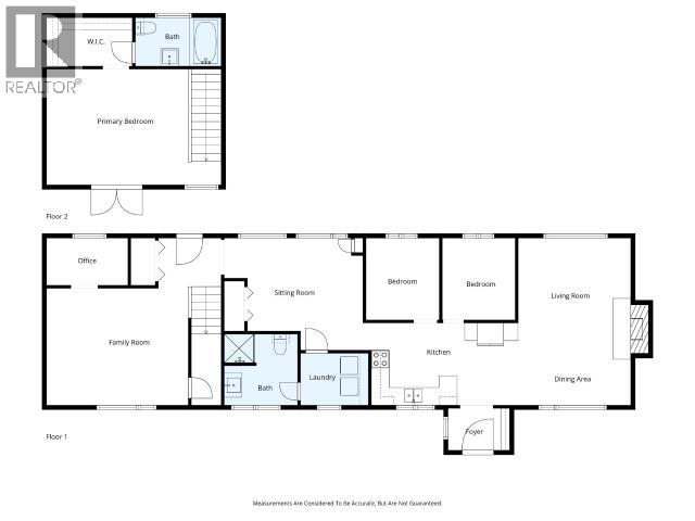
Rooms
| Level | Type | Length | Width | Dimensions |
|---|---|---|---|---|
| Above | Primary Bedroom | 18 ft | 12 ft | 18 ft x 12 ft |
| Above | 4pc Bathroom | Measurements not available | ||
| Main Level | Foyer | 7 ft | 5 ft | 7 ft x 5 ft |
| Main Level | Living Room | 12 ft | 13 ft | 12 ft x 13 ft |
| Main Level | Dining Room | 12 ft | 7 ft | 12 ft x 7 ft |
| Main Level | Kitchen | 16 ft | 9 ft | 16 ft x 9 ft |
| Main Level | 3pc Bathroom | Measurements not available | ||
| Main Level | Family Room | 16 ft | 19 ft | 16 ft x 19 ft |
| Main Level | Bedroom | 8 ft | 9 ft | 8 ft x 9 ft |
| Main Level | Bedroom | 8 ft | 9 ft | 8 ft x 9 ft |
| Main Level | Laundry Room | 8 ft | 6 ft | 8 ft x 6 ft |
https://www.realtor.ca/real-estate/28962641/16-deadend-road-whitehorse-south

Marc Perreault
(867) 334-4212
(867) 334-4212
RE/MAX ACTION REALTY
400-4201 4th Ave
Whitehorse, Yukon Y1A 5A1
400-4201 4th Ave
Whitehorse, Yukon Y1A 5A1
(867) 667-2514
(867) 667-7132
remaxyukon.com/
Contact Us
Contact us for more information








































































































